Melt House ผลงานการออกแบบโดยสถาปนิกจาก SAI Architectural Design Office บ้านสไตลฺมินิมอลที่มีรูปแบบของการออกแบบและตกแต่งที่เรียบง่าย มีวัสดุที่เป็นมิตรกับธรรมชาติอย่างงานไม้ที่ถูกนำมาใช้ในแทบทุกพื้นที่ของตัวบ้าน
บ้านหลังนี้มีเจ้าของเป็นคู่สามีภรรยาอายุ 30 ปี มีลูก 2 คน ตัวบ้านตั้งอยู่ในย่านที่พักอาศัยที่มีถูมิประเทศแบบเชิงเขา โดยเป้นบ้านหน้าแคบที่มีความกว้าง 5.6 เมตร และลึก 23.7 เมตร มีที่จอดรถอยู่บริเวณด้านข้างของตัวบ้าน รูปทรงของบ้านให้ความรู้สึกถึงรูปทรงเรขาคณิตแบบโมเดิร์น

พื้นที่สำหรับจอดรถตั้งอยู่บริเวณด้านข้างของตัวบ้าน โดยเป็นลานกว้างที่เปิดโล่ง ถูกต่อเติมด้วยหลังคากันสาดเพื่อป้องกันแสงแดดและฝน

เมื่อเราเข้ามาภายใน เราก็จะพบกับโถงทางเดินหน้าบ้านอันเป็นเอกลักษณ์ของบ้านญี่ปุ่น ซึ่งบริเวณนี้เราจะถอดรองเท้า หรือวางของใช้สำหรับการเดินทางไว้ในบริเวณนี้

พื้นที่หลักของบ้าน คือ ห้องโถงบริเวณนี้ ซึ่งเป็นโถงแบบโปร่งโล่ง มีเพดานที่ยกสูง จึงทำให้สามารถปลูกต้นไม้เอาไว้ได้เลย ดังที่เราเห็นจากในภาพนี้

การตกแต่งโดยทั่วไปของบ้าน ก็จะเป็นแบบบ้านมินิมอลทั่ว ๆ ไปที่จะเลือกใช้ผนังที่ทาด้วยสีขาวครีม ผสานไปกับโทนสีน้ำตาลอ่อนจากงานไม้ที่ถูกใช้งานในหลายส่วนของบ้าน

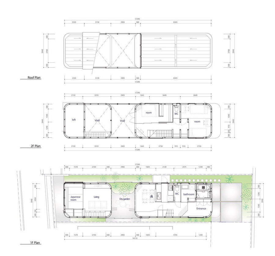
แบบแปลนภายในบ้าน

ที่มา : archdaily
ออกแบบ : SAI Architectural Design Office
ถ่ายภาพ : Norihito Yamauchi

.

.

.

.

.
.