แบบบ้านโมเดิร์นทรงจั่ว ผลงานการออกแบบโดยทีมงาน ScanHaus Marlow บริษัทรับสร้างบ้านจากประเทศเยอรมนี โดดเด่นด้วยดีไซน์รูปทรงที่เรียบง่ายทันสมัย พร้อมการออกแบบพื้นที่ใช้สอยภายในโดยเน้นความโปร่งโล่งเป็นหลักครับ
ลักษณะตัวบ้านชั้นเดียวรูปทรงหลังคาหน้าจั่ว ดีไซน์รูปทรงหน้าแคบหลังลึก ผนังภายนอกตกแต่งด้วยโทนสีขาวทั้งหมด มีหน้าต่างและประตูกระจกบานใหญ่ นอกจากนี้ บริเวณหลังคายังมีช่องรับแสงอยู่ด้วย ทำให้พื้นที่ภายในได้รับแสงสว่างอย่างเต็มที่

บริเวณหน้าบ้านมีเฉลียงไม้คอยต้อนรับอยู่ ถูกจัดสรรให้เป็นพื้นที่พักผ่อนหรือรับแขก เปิดโอกาสให้ผู้อยู่อาศัยหรือผู้มาเยือนได้ดื่มด่ำกับบรรยากาศกลางแจ้งอันสดชื่น

เข้ามาชมภายในบ้านกันบ้างครับ จะเห็นได้ว่าพื้นที่ใช้สอยภายในได้รับแสงสว่างจากภายนอกอย่างเต็มที่ผ่านช่องรับแสงฝ้าเพดาน หน้าต่าง และประตูกระจกขนาดใหญ่ เมื่อรวมกับการตกแต่งที่เน้นโทนสีขาวแล้ว ก็ยิ่งทำให้พื้นที่ดูโปร่งกว้างเป็นพิเศษด้วยครับ

เนื่องจากบ้านหลังนี้ใช้โทนสีขาวเป็นหลัก ผู้ออกแบบจึงได้เพิ่มความอบอุ่นด้วยการใช้ไม้เข้ามาเป็นส่วนประกอบ ทั้งในส่วนของพื้นและเฟอร์นิเจอร์ต่าง ๆ

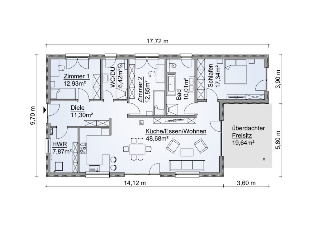
แปลนพื้นที่

แบบบ้านหลังนี้ประกอบไปด้วย 3 ห้องนอน 2 ห้องน้ำ พื้นที่ใช้สอยรวม 147 ตารางเมตร หากเพื่อน ๆ ชาวเว็บชื่นชอบไอเดียแบบบ้านในบทความนี้ อย่าลืมนำไปแชร์ต่อกันด้วยนะครับ ^_^
ที่มา : scanhaus .