สวัสดีครับเพื่อน ๆ ชาวเว็บ ในบ้าน ที่น่ารักทุกท่าน กลับมาพบกันวันนี้เราขอพาไปชมแบบบ้านสไตล์โมเดิร์นสุดทันสมัย ผลงานจาก Homeplan 360 ดีไซน์สวยงาม เรียบง่าย มีเอกลักษณ์ พร้อมฟังก์ชันครบครันสำหรับครอบครัวยุคใหม่ ตามมาชมกันได้เลยจ้า
ลักษณะตัวบ้านชั้นเดียวยกพื้น ดีไซน์เป็นรูปทรงกล่องสี่เหลี่ยม ผนังภายนอกตกแต่งด้วยโทนสีขาว แทรกไปด้วยรายละเอียดของงานไม้ ผสานกลิ่นอายความดั้งเดิมและความทันสมัยได้อย่างลงตัว

ส่วนหน้าของอาคารมีเฉลียงทรงตัวแอลที่ยาวไปถึงด้านข้างของตัวบ้าน สามารถจัดสรรเป็นพื้นที่ใช้สอยกึ่งกลางแจ้งได้ ไม่ว่าจะเป็นการรับประทานอาหาร หรือจัดงานสังสรรค์ต่าง ๆ

เฉลียงที่ยาวมาถึงด้านข้าง มีประตูทางเข้าอีกทางหนึ่งด้วย

ระเบียงทางเข้านี้สามารถใช้เป็นพื้นที่รับแขก พูดคุย ได้โดยไม่ต้องพาแขกเข้าบ้านหากต้องการความเป็นส่วนตัว

บ้านหลังนี้เลือกใช้ประตูและหน้าต่างแบบกระจกโปร่งแสง จึงทำให้พื้นที่ใช้สอยภายในบ้านได้รับแสงสว่างและอากาศถ่ายเทได้อย่างสะดวก

ผู้ออกแบบได้จัดวางพื้นที่รอบ ๆ ให้เป็นสนามหญ้าสีเขียว ช่วยเพิ่มบรรยากาศที่อบอุ่นและเป็นธรรมชาติให้กับบ้านหลังนี้

เข้ามาชมการตกแต่งภายในกันบ้างครับ ตกแต่งบนพื้นฐานแนวคิดที่เน้นความทันสมัย ภายใต้โทนสีที่เรียบง่ายอย่างขาว เทา และโทนสีเบจ ผ่านองค์ประกอบต่าง ๆ ไม่ว่าจะเป็นผนัง พื้น ฝ้า เฟอร์นิเจอร์ต่าง ๆ ฯลฯ ผสมกลมกลืนกันอย่างลงตัว
ห้องโถง

ส่วนพักผ่อน

การออกแบบพื้นที่ใช้สอยภายในก็เน้นฟังก์ชันที่ทันสมัย และการรับแสงธรรมชาติผ่านหน้าต่างกระจกขนาดใหญ่ จึงช่วยให้พื้นที่ภายในเพียบพร้อมไปด้วยความสะดวกสบายและมีบรรยากาศที่ปลอดโปร่งโล่งสบาย
ห้องทานอาหาร/เตรียมอาหาร

.

ครัวไทย

ห้องนอน 1

ห้องน้ำในห้องนอน 1

ห้องนอน 2

ห้องนอนในห้องน้ำ 2

ห้องนอน 3

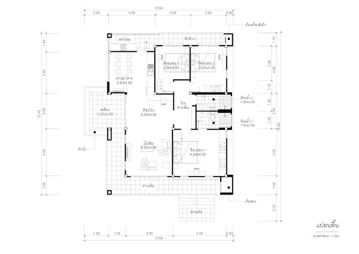
แปลนพื้นที่

แปลนหลังคา

แบบบ้านนี้ประกอบไปด้วย 3 ห้องนอน 2 ห้องน้ำ พื้นที่ใช้สอย 159 ตารางเมตร (แยกเป็นพื้นที่ภายใน 99 ตารางเมตร และระเบียง 60 ตารางเมตร) งบประมาณก่อสร้าง 1.6 – 1.8 ล้านบาทครับ
ปล. งบประมาณในการสร้างบ้านแต่ละหลังที่แตกต่างกันนั้น ขึ้นอยู่กับหลายปัจจัย ไม่ว่าจะเป็นพื้นที่ก่อสร้าง คุณภาพหรือเกรดของวัสดุ การว่าจ้างช่างฝีมือหรือผู้รับเหมา ฯลฯ ดังนั้น ข้อมูลของบ้านหลังนี้จึงมีไว้เพื่อเป็นตัวอย่างให้ศึกษาเท่านั้น ไม่สามารถนำไปเป็นมาตรฐานในการสร้างบ้านอื่นๆ ที่มีสภาพปัจจัยที่แตกต่างกันได้
ที่มา : homeplan360
E-mail : [email protected]
Tel. : 089-7298599
Line ID : 0897298599