กำลังอ่าน:

Wehha House บ้านโมเดิร์นหลังใหญ่ที่สะท้อนแนวคิดการเชื่อมโยงบ้านกับธรรมชาติเข้าไว้ด้วยกัน

Wehha House บ้านโมเดิร์นหลังใหญ่ที่สะท้อนแนวคิดการเชื่อมโยงบ้านกับธรรมชาติเข้าไว้ด้วยกัน

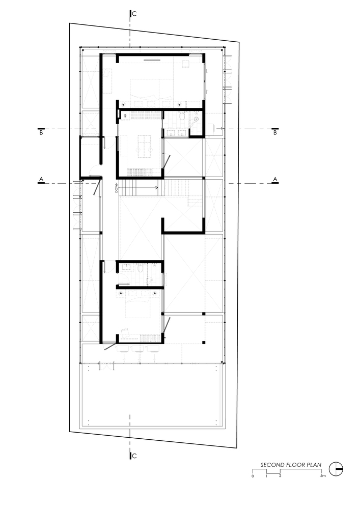
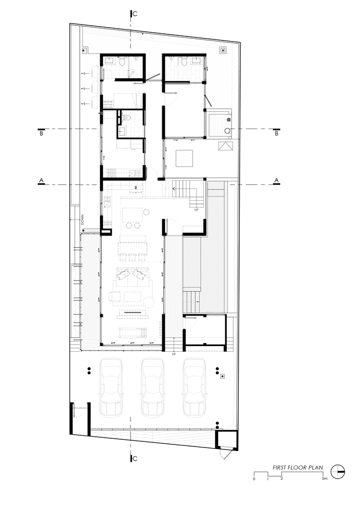
Wehha House หรือตรงตัวเลยก็คือ บ้านเวหา ผลงานการออกแบบโดยสถาปนิก Junsekino Architect and Design...

25 October 2021 4 Mins Read
1K Views

รู้จัก "ในบ้าน"

รวมไอเดียตกแต่งบ้าน รีวิวบ้าน คาเฟ่ ที่พัก ไปจนถึงทุกเรื่องของการใช้ชีวิต ขอบคุณทุกคนที่ติดตามกันมาตั้งแต่ปี 2012 

ติดต่อในบ้าน

ติดต่อคอนเทนต์:  Inbox NaiBann
ติดต่อโฆษณา: [email protected]

© 2023 All Rights Reserved.