กำลังอ่าน:

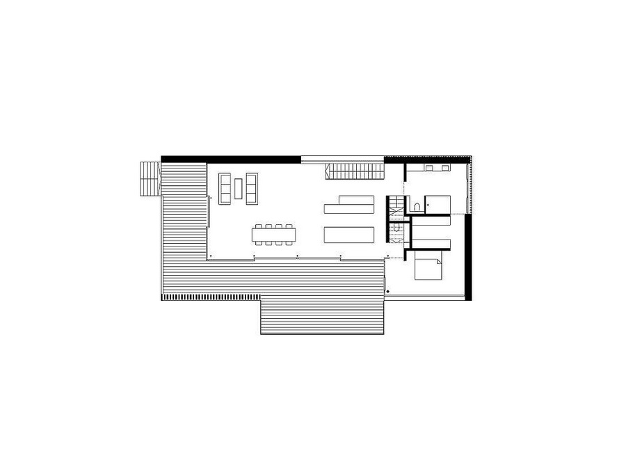
บ้านไม้สไตล์คันทรี ดีไซน์หลังคาทรงหน้าจั่ว มีฐานเป็นคอนกรีตมั่นคงแข็งแรง

บ้านไม้สไตล์คันทรี ดีไซน์หลังคาทรงหน้าจั่ว มีฐานเป็นคอนกรีตมั่นคงแข็งแรง

บ้านไม้ขนาดกว้างขวาง...

27 April 2021 4 Mins Read
890 Views

รู้จัก "ในบ้าน"

รวมไอเดียตกแต่งบ้าน รีวิวบ้าน คาเฟ่ ที่พัก ไปจนถึงทุกเรื่องของการใช้ชีวิต ขอบคุณทุกคนที่ติดตามกันมาตั้งแต่ปี 2012 

ติดต่อในบ้าน

ติดต่อคอนเทนต์:  Inbox NaiBann
ติดต่อโฆษณา: [email protected]

© 2023 All Rights Reserved.