กำลังอ่าน:

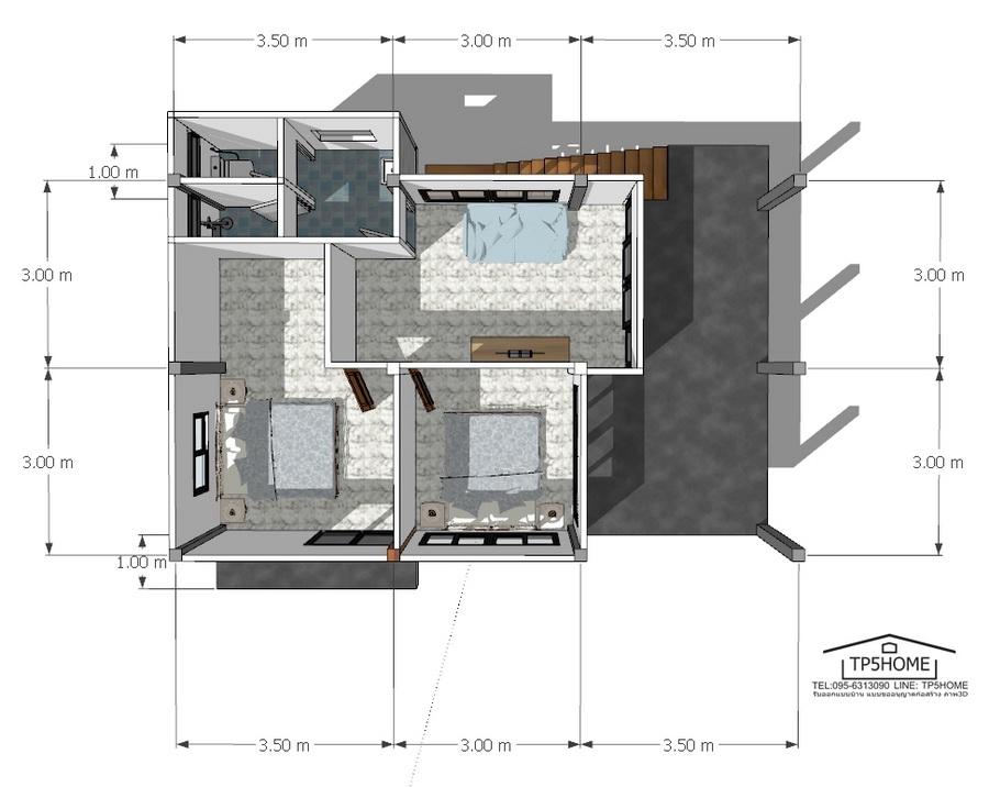
แบบบ้านสองชั้นสไตล์โมเดิร์นลอฟท์ 2 ห้องนอน 2 ห้องน้ำ พร้อมใต้ถุนยกสูง พื้นที่ 120 ตร.ม.

แบบบ้านสองชั้นสไตล์โมเดิร์นลอฟท์ 2 ห้องนอน 2 ห้องน้ำ พร้อมใต้ถุนยกสูง พื้นที่ 120 ตร.ม.

...

15 October 2020 3 Mins Read
2.2K Views

รู้จัก "ในบ้าน"

รวมไอเดียตกแต่งบ้าน รีวิวบ้าน คาเฟ่ ที่พัก ไปจนถึงทุกเรื่องของการใช้ชีวิต ขอบคุณทุกคนที่ติดตามกันมาตั้งแต่ปี 2012 

ติดต่อในบ้าน

ติดต่อคอนเทนต์:  Inbox NaiBann
ติดต่อโฆษณา: [email protected]

© 2023 All Rights Reserved.