สวัสดีครับเพื่อนๆ ชาวเว็บทุกท่าน ถ้าหากเพื่อนๆ กำลังมองหาไอเดียสำหรับการสร้างบ้านกันอยู่ และอยากได้ข้อมูลบ้านที่ฮิตๆ กันอยู่ วันนี้ ในบ้าน ก็นำเอา แบบบ้านสไตล์คอนเทมโพรารี ผลงานจาก home plan 360 มาฝากเพื่อนกันด้วยครับ มาเก็บข้อมูลกันเลย
สำหรับดีไซน์ของบ้านหลังนี้ก็เป็นทรงแบบร่วมสมัยที่เราต่างคุ้นเคยกันดี ตัวบ้านมีขนาดชั้นเดียว ตกแต่งในโทนสีที่ให้บรรยากาศอบอุ่น ความโดดเด่นของบ้านจะอยู่ที่หลังคาทรงปั้นหยาที่ออกแบบเล่นระดับ พร้อมกับมุงด้วยกระเบื้องแบบเรียบ จึงให้ความสวยงามดึงดูดสายตา

รอบตัวบ้านถูกติดตั้งด้วยประตูและหน้าต่างกระจกใสที่ให้ความโปร่งสบาย สามารถถ่ายเทอากาศได้เป็นอย่างดี เหมาะกับเมืองร้อนอย่างเมืองไทย

นอกจากนี้บริเวณทางเข้าหน้าบ้านยังมีพื้นที่เฉลียงขนาดเล็กอีกด้วย ซึ่งเหมาะกับการตกแต่ง หรือจัดสวนเล็กๆ เพื่อให้เป็นมุมสร้างความประทับใจให้ผู้มาเยือน

สำหรับบริเวณนี้เป็นภาพจากบริเวณด้านหลังบ้าน ซึ่งก็โปร่งสบายด้วยหน้าต่างจำนวนหลายบาน นอกจากนี้ยังมีทางเข้าออกอีกแห่ง จึงให้ความสะดวกสบายแก่ผู้พักอาศัย

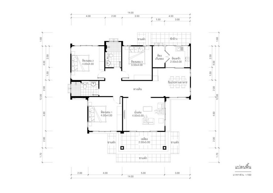
แบบแปลนภายใน

แบบแปลนหลังคา

แบบบ้านชั้นเดียวสไตล์คอนเทมโพรารีหลังนี้ประกอบไปด้วย 3 ห้องนอน 2 ห้องน้ำ 1 ห้องโถงนั่งเล่น 1 ห้องครัว พื้นที่ใช้สอยรวมทั้งหมด 151 ตารางเมตร งบก่อสร้างเริ่มต้นที่ประมาณ 1.5 ล้านบาท
ปล. งบประมาณในการสร้างบ้านแต่ละหลังที่แตกต่างกันนั้น ขึ้นอยู่กับหลายปัจจัย ไม่ว่าจะเป็นพื้นที่ก่อสร้าง คุณภาพหรือเกรดของวัสดุ การว่าจ้างช่างฝีมือหรือผู้รับเหมา ฯลฯ ดังนั้น ข้อมูลของบ้านหลังนี้จึงมีไว้เพื่อเป็นตัวอย่างให้ศึกษาเท่านั้น ไม่สามารถนำไปเป็นมาตรฐานในการสร้างบ้านอื่นๆ ที่มีสภาพปัจจัยที่แตกต่างกันได้
ที่มา : home plan 360
https://www.youtube.com/watch?time_continue=158&v=lU-6WO1gnLY&feature=emb_title .